Продается отдельно стоящее здание в Лаишевском районе, с.Сокуры, по ул. Луговая 2А.

Здание находится на первой линии дороги с.Сокуры.
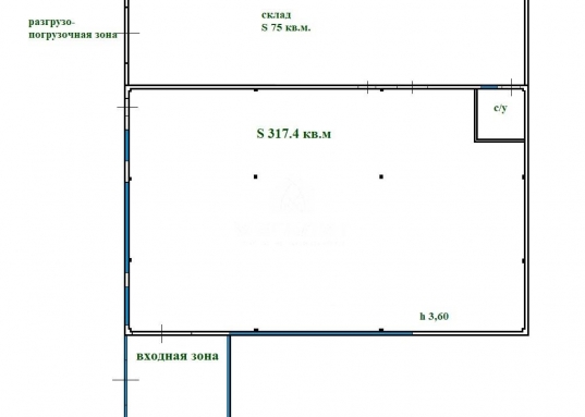
Общая площадь 400 кв.м.
Площадь земельного участка 9,93 сотки.

На данный момент здание занимает федеральная сеть магазинов "Магнит".
Договор аренды с 2019г.
При покупке данного здания под свой бизнес возможна перепланировка.

Подъездные пути и парковка заасфальтированы.
Автономное газовое отопление.
Электрическая мощность 50 кВт.

Удобное месторасположение:
- множество жилых поселков,
- развитая инфраструктура,
- до "М-12 Восток" 10 км.

Ближайшие поселки: Зимняя Горка, Тургай, Каипы,Бима, Большие Кабаны и мн др.
__________________________________________________________________________________
С уважением, ваш гид в мире недвижимости, Людмила.
АН «МЕГАЛИТ» основано в 2004 году, 22 года опыта на Вашей стороне.
Продажа / аренда:
- Квартиры, комнаты, жилой дом, земельные участки, таунхаусы, коттеджи;
- Коммерческая недвижимость ( производственные базы, склады, офисы, земельные участки промышленного назначения, готовый арендный бизнес).
- Помощь в оформлении ипотеки
- Примем в оплату ваше жилье
- Покупка недвижимости с использованием мат капитала.
- Выгода до 40% на страховке имущества
- Сотрудники с опытом более 10 лет.
- Лучшая юридическая поддержка











Продолжая использовать наш сайт, вы даете согласие на обработку файлов cookie, пользовательских данных (сведения о местоположении; тип и версия ОС; тип и версия Браузера; тип устройства и разрешение его экрана; источник откуда пришел на сайт пользователь; с какого сайта или по какой рекламе; язык ОС и Браузера; какие страницы открывает и на какие кнопки нажимает пользователь; ip-адрес) в целях функционирования сайта, проведения ретаргетинга и проведения статистических исследований и обзоров. Если вы не хотите, чтобы ваши данные обрабатывались, покиньте сайт.
OK
Яндекс.Метрика