Цена, руб:
18 700 000 руб.
Первоначальный взнос, руб. или %Первоначальный взнос, руб. либо %
%
руб
Срок кредитования, лет
Укажите ваш возраст
лет
Абсолют банк
Аверс банк
ВТБ
Сбербанк
УБРиР
Татсоцбанк
Предоставленная информация является справочной, расчет производится приблизительно.
Прекрасная возможность купить квартиру по самой выгодной цене!​​​​​​​

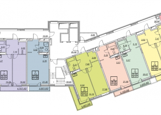
Вашему вниманию представлена просторная 2-евро квартира площадью 55,01 м2 в ЖК "Жилой дом на Хади Атласи" (Вахитовский район Казани).

Жилой комплекс бизнес класса от застройщика "Суварстроит" вводится в эксплуатацию в ноябре 2025 года. 
Квартира сдается с черновой отделкой для удобства воплощения Ваших дизайнерских задумок. Просторна кухня - гостиная 19,39 м2 с панорамным окном и выходом на балкон, ориентированным таким образом, чтобы Вы могли встречать рассвет и провожать закат, любуясь панорамой центра Казани. Спальная комната 18 м2. Просторная гардеробная комната при входе. В квартире много естественного света, что стимулирует творческое начало и стремление к познанию и росту.

Возможно увеличение площади квартиры до 93,39 м2 за счет объединения со смежной студией.

Красивое дизайнерское лобби в природных оттенках встречает жителей дома зоной отдыха. Также на первом этаже предусмотрены колясочная, велопарковка, пункт охраны.

ЖК "Жилой дом на Хади Атласи"  - дом клубного формата всего на 69 квартир с собственным подземным паркингом (имеется несколько мест в продаже по запросу). Фасады дома выложены клинкерной плиткой и композитными фасадными панелями, благодаря чему дом органично вписывается в существующий контекст города. 

Расположение в тихом и уютном центре города порадует удобной инфраструктурой и доступностью к деловой, общественной и развлекательной жизни Казани. При этом дом скрыт от шумных дорог и позволит насладиться тишиной и покоем после активно проведенного дня.
В шаговой доступности находится ст. метро "Суконная слобода" (улицы Назарбаева, Петербургская, Островского), КГАСУ на ул. Калинина, кинотеатр "Мир"  (ул. Чехова, Достоевского), ТРЦ "Корстон"  (ул. Ершова, Вишневского), ресторан "Зимняя вишня" (ул. Айвазовского, Муштари, Ульянова-Ленина).

Продолжая использовать наш сайт, вы даете согласие на обработку файлов cookie, пользовательских данных (сведения о местоположении; тип и версия ОС; тип и версия Браузера; тип устройства и разрешение его экрана; источник откуда пришел на сайт пользователь; с какого сайта или по какой рекламе; язык ОС и Браузера; какие страницы открывает и на какие кнопки нажимает пользователь; ip-адрес) в целях функционирования сайта, проведения ретаргетинга и проведения статистических исследований и обзоров. Если вы не хотите, чтобы ваши данные обрабатывались, покиньте сайт.
OK
Яндекс.Метрика